ФД

Феликс Дзержинский
Паровоз ФД21-3125
Паровоз ФД21-3125
Производство
Страна постройки  СССР
Заводы Ворошиловградский (Луганский) паровозостроительный,
Улан-Удэнский паровозоремонтный
Годы постройки 19311942
Всего построено 3213
Технические данные
Осевая формула 1-5-1
Длина паровоза 15 877 мм (ФД20), 15 905 мм (ФД21)
Диаметр бегунковых колёс 900 мм
Диаметр движущих колёс 1500 мм
Диаметр поддерживающих колёс 1200 (№ 1—3), 1050 мм
Ширина колеи 1524 мм, 1435 мм
Служебный вес паровоза 134,4 т, 145 т (ФДк)
Порожний вес паровоза 118,87 т
Сцепной вес 100—104 т (ФД20), 103,5 т (ФД21), 110 т (ФДк)
Нагрузка от движущих осей на рельсы 20—22 тс
Мощность до 3100 л. с.
Сила тяги 21 200—23 300 кгс
Конструкционная скорость 85 км/ч
Давление пара в котле 15 кгс/см²
Полная испаряющая поверхность нагрева котла 295,16 м² (ФД20), 247,7 м² (ФД21)
Тип пароперегревателя Элеско-Е (ФД20), Л40 (ФД21)
Поверхность нагрева пароперегревателя 148,4 м² (ФД20), 123,5 м² (ФД21)
Площадь колосниковой решётки 7,04 м²
Диаметр цилиндров 670 мм
Ход поршня 770 мм
Парораспределительный механизм Гейзингера (Вальсхарта)
Тип тендера 4-осный (ФД20-1), тип 17, 6П
Эксплуатация
Страны  СССР,  Китай,  КНДР
Логотип Викисклада Медиафайлы на Викискладе

ФДФеликс Дзержинский»; заводское обозначение —  — «1-й тип паровоза»; прозвища — Федя, Федюк, Феликс[1][2]) ― советский магистральный грузовой паровоз типа 1-5-1, производившийся Луганским (Ворошиловградским) паровозостроительным заводом с 1931 по 1941 год. Был создан в связи с проводившейся в Советском Союзе индустриализацией, когда правительство страны потребовало от железнодорожного транспорта справиться со всё возрастающим грузооборотом.

Проектирование и постройка первого паровоза серии заняли рекордно короткий срок — 170 дней, и это при том, что на нём было применено множество нововведений, которые кардинально изменили советскую школу паровозостроения. Полученный при проектировании и производстве «Феликса Дзержинского» опыт был использован при создании всех последующих советских паровозов. ФД обслуживал важнейшие грузовые направления, увеличивая их провозную способность за счёт повышения веса и, особенно, технической скорости движения грузовых поездов в условиях предельного использования винтовой сцепки и нереконструированного верхнего строения пути. Являлся одним из мощнейших советских серийных паровозов и имел среди них самую высокую силу тяги. Впоследствии значительное количество ФД поступило и на железные дороги Китайской Народной Республики.

Часто к серии ФД ошибочно относят пассажирские паровозы ФДп, которые до 1962 года носили обозначение серии ИС. Паровозы серии ИС строились с 1932 года и имели большу́ю унификацию с паровозом ФД (котёл, паровая машина, элементы экипажной части), но отличались от него осевой характеристикой[3].

Предыстория

Сама идея применения паровоза типа 1-5-1 на российских железных дорогах возникла ещё в 1915 году в ходе проектирования будущего паровоза серии Е. Среди сторонников этой идеи был и Н. Л. Щукин, который тогда занимал пост главы комиссии по подвижному составу Министерства путей сообщения. Однако по ряду причин, из которых основной была та, что паровоз такого типа попросту не поместился бы на существовавших в то время поворотных кругах, от идеи применения на российских железных дорогах паровозов такого типа были вынуждены отказаться. В результате тогда для паровозов Е был принят тип 1-5-0[4].

Паровоз Эу типа 0-5-0

Вновь к идее создания новых мощных паровозов вернулись в конце 1925 года, когда на XIV съезде ВКП(б) (18—31 декабря) был провозглашён курс партии и правительства на индустриализацию страны. Предстоял существенный рост объёма перевозок, но было очевидно, что находящиеся в эксплуатации типы наиболее мощных паровозов (например, типа 0-5-0 серии Э и типа 1-5-0 серии Е) по своим техническим параметрам не могут рассматриваться в качестве перспективных. Требовался новый, более мощный и скоростной тип грузового паровоза[5].

Проектирование новых паровозов могло идти по двум путям: либо по классической схеме русских паровозов (в том числе и с листовой рамой), увеличив при этом число движущих осей до 6 и более, либо использовать опыт железных дорог Америки и западной Европы. В результате рассмотрения этих двух вариантов, комиссия приняла решение использовать зарубежный опыт, причём прежде всего американский, так как условия эксплуатации локомотивов в США были во многом схожи с предполагаемыми условиями эксплуатации локомотивов в СССР (перевозка больших масс грузов, на большие расстояния и с возможно большими скоростями). Также у этих двух стран близок профиль железных дорог (преимущественно равнинный, местами холмистый), а климат северной части Штатов схож с климатом умеренной и южных областей Советского Союза[6]. В результате на уровне НКПС было дано заключение:

Тенденция современного паровозостроения направлена в сторону создания экономных машин большой мощности и большой скорости и с высоким КПД. США достигли уже предела развития паровоза по длине машин, габариту и нагрузкам на ведущие оси (30—33 т) в современных условиях. Европа применяет нагрузки 20—23 т, использовала свой габарит полностью и имеет резерв по длине. В СССР нагрузка на ведущую ось пока не превышает 18,5 т по состоянию путей, но в отношении линейных размеров паровоза возможно идти дальше США. Быстрый темп развития работы железнодорожного транспорта в связи с осуществлением пятилетнего плана социалистического строительства требует мощных паровозов. Намечается постройка паровозов типа 1-5-2 с нагрузкой на ведущую ось в 23 т, а для отдельных участков — такого же типа с нагрузкой 27 т для товарных поездов весом 4000—5000 т и типа 2-4-1 или 2-4-2 с нагрузкой на ведущую ось до 22 т для курьерских поездов весом 600—800 т с ходовыми скоростями 100—120 км/ч[5].

Паровоз Е типа 1-5-0

Народный комиссариат путей сообщения СССР принимает решение о выделении необходимых материальных и финансовых средств, причём в первую очередь на реконструкцию Луганского паровозостроительного завода имени Октябрьской революции, с целью развития его производственных мощностей до уровня крупнейших американских паровозостроительных заводов (например, заводов «Большой тройки»: ALCO, Baldwin и Lima). В апреле 1926 года ВСНХ СССР утверждает программу перестройки Луганского паровозостроительного завода, после чего началось проектирование новых производственных площадей, причём цеха изначально планировались на возможность крупносерийного производства паровозов типа 1-5-2 (Texas) с нагрузкой от оси на рельсы в 23—27 тс. Также не исключено, что для консультаций по реконструкции заводов были приглашены и американские специалисты. Помимо реконструкции Луганского завода, в перспективе планировалось и возведение новых паровозостроительных заводов-гигантов в Новочеркасске, Орске и Кузнецке.[7][8]

Однако если в 1926 году ещё рассчитывали через 2—3 года построить новый паровоз, то уже в следующем году это было поставлено под сомнение. Причин на то было несколько, в том числе:

  1. Недостаточные производственные мощности всех действующих советских паровозостроительных заводов;
  2. Неопределённость в сроках завершения реконструкции Луганского завода — из-за этого не было базы для выпуска паровозов «американских» конструкций (с блочными цилиндрами, брусковой рамой);
  3. Неопределённость в методах и сроках перевода грузового подвижного состава на автотормоза и автосцепку — тормоз Казанцева появился только в 1925 году, а автосцепка СА-3 в 1932;
  4. Неопределённость в методах и сроках осуществления технической реконструкции верхнего строения пути на главных грузовых направлениях, поскольку советская металлургическая промышленность, в ближайшей перспективе, могла обеспечить массовый прокат рельсов не тяжелее чем «IIIа», погонным весом 33,48 кг/м, для которых наибольшая допускаемая осевая нагрузка составляла 18,5 т.
Луганский паровозостроительный завод (фото 1932 года)

Таким образом, реальное положение дел на советском железнодорожном транспорте нарушало все смелые прогнозы специалистов. Однако медленно, но верно реконструкция железнодорожного транспорта началась. В частности, на подвижном составе была внедрена винтовая сцепка повышенной прочности, допускающая тяговое усилие на крюке до 18 тс, продолжалось оборудование вагонов автотормозами, а в 1927 году началась реконструкция Луганского завода[7][8].

Проектирование

Техническое задание на проект

В течение первой пятилетки экономика СССР переживала бурный подъём. Однако уже в первой половине 1930 года появились серьёзные симптомы отставания транспорта (особенно железнодорожного), который, буквально, не поспевал за высокими темпами развития промышленности. В результате 10 марта того же года НКПС выдаёт срочное поручение Центральному планово-техническому управлению (ЦПТУ НКПС) на проведение технико-экономических расчётов по определению основных параметров паровозов со сцепным весом от 115 т и нагрузкой на ось не менее 23 тс для сочленённых паровозов и паровозов с одной жёсткой рамой[9]. Параллельно в Техническом бюро Транспортного отдела ОГПУ (ТБ ОГПУ) проводятся аналогичные расчёты для локомотивов всех типов (паровозов, тепловозов, электровозов), но с учётом проводившейся в то время реконструкции советского железнодорожного транспорта[10]. Особенно остро в то время стояла, так называемая «паровозная проблема», то есть требовалось создать за короткое время такой паровоз, который бы позволил как можно более значительно увеличить провозную способность железных дорог при как можно меньших капитальных затратах и расходах на эксплуатацию. Поэтому техническое задание на товарный паровоз включало в себя следующие условия[11]:

  1. Использовать рельсовый путь главнейших направлений с наименьшими затратами на его усиление, то есть с максимальной нагрузкой, возможной для рельса типа IIа без вредного его перенапряжения.
  2. Поднять максимально вес поезда, не выходя при этом, впредь до введения автосцепки, за пределы прочности существующих сцепных приборов.
  3. Выбрать такой тип паровоза, который дал бы при углях и смесях среднего качества значительное повышение технической, а следовательно и коммерческой скорости.
  4. Выбрать паровоз с такими размерами котла, обслуживание топки которого было бы возможно не только при стокере, но и вручную.

Предварительное проектирование

Используя результаты расчётов и данные технического задания, в мае 1930 года в том же бюро под руководством инженера П. И. Красовского (бывший начальник Отдела тяги ЦУЖел НКПС) инженеры Р. П. Гриненко, М. С. Фёдоров и другие приступили к выполнению предварительного проекта мощного скоростного товарного паровоза[10].

После проведения аналитической работы, в конце апреля на ТБ ОГПУ была завершена разработка предварительного проекта мощного товарного паровоза, типа 1-5-1, с давлением на ось в 20 тс для постройки на советских заводах. Согласно этому проекту, паровоз имел следующие характеристики[11]:

  • сорт топлива — смесь донецких углей, теплотворной способностью — 6000 кал/кг;
  • площадь колосниковой решётки — 7 м²;
  • поверхность нагрева топки с камерой догорания — 32 м²;
  • испаряющая поверхность нагрева котла — 312 м²;
  • давление пара в котле — 14—15 кгс/см²;
  • паровая машина — двухцилиндровая, простого действия перегретого пара;
  • диаметр цилиндров — 675 мм;
  • ход поршня — 750 мм;
  • диаметр движущих колёс — 1480 мм;
  • вес паровоза в рабочем состоянии — 128 т;
  • предельная скорость — 60 км/ч;
  • предельная нагрузка на сцепную ось — 20 тс;
  • допустимый перегруз на движущих колёсах от сил инерции неуравновешенных масс — 20 %;
  • вписываемость в габарит подвижного состава.

Эскизное проектирование

В ходе эскизного проектирования следовало проверить, а следовательно, определить параметры основных элементов паровоза, в том числе[12]:

  1. Основные размеры паровой машины и диаметр движущих колёс;
  2. Общий вес локомотива (включая развеску по осям);
  3. Параметры котла (площади испаряющей и пароперегревательной поверхностей, колосниковой решётки);
  4. Габариты паровоза (общая и сцепная колёсные базы, высота оси котла над головками рельсов, диаметры бегунковых и поддерживающих колёс).

Часть этих параметров (например, общий вес и колёсная база) в некоторой степени определялась техническим заданием, либо в ходе самого эскизного проектирования, однако для определения других параметров (например, размеры парового котла) требовались весьма сложные расчёты. В результате на данном этапе проектирования были определены следующие параметры[12]:

Первоначальный эскиз паровоза
  • вес локомотива — 132—133 т, из них:
    • сцепной вес — 100 т;
    • нагрузка на бегунковую ось — 13 т;
    • нагрузка на поддерживающую ось — 19—20 т;
  • диаметр цилиндров — 670 мм;
  • ход поршня — 770 мм;
  • диаметр движущих колёс — 1500 мм;
  • диаметр бегунковых колёс — 900 мм;
  • диаметр поддерживающих колёс — 1200 мм;
  • длина трубчатой части котла — 6000 мм;
  • испаряющая поверхность нагрева котла — 293 м²;
  • площадь пароперегревателя — 147 м²;
  • площадь колосниковой решётки — 7 м².
Схема пароперегревателя Элеско-Е

В ходе дальнейших уточнений и сравнений различных вариантов, выявились следующие параметры котла[13]:

  • испаряющая поверхность нагрева котла — 295,16 м²;
  • тип пароперегревателя — мелкотрубный Элеско-Е[сн 1];
  • площадь пароперегревателя — 138,5 м²;
  • площадь колосниковой решётки — 7,04 м².

Рабочее проектирование

Далее эскизный проект был передан в Центральное локомотивопроектное бюро Наркомата тяжёлой промышленности (ЦЛПБ НКТП), которое располагалось на территории Коломенского завода. 1 мая 1931 года, коллектив конструкторов под руководством К. Н. Сушкина приступил к рабочему проектированию нового паровоза. В коллектив конструкторов входили:

С момента начала рабочего проектирования паровоза типа 1-5-1, ЦЛПБ ввело новую систему обозначения типов локомотивов, проектируемых на Коломенском заводе. По этой системе проектируемый паровоз был обозначен как тип «1П» («1-й тип паровоза»). Такая система была сохранена и в дальнейшем, причём букву вскоре стали ставить перед цифрой (П12, П32, П34, П36, П38)[10].

Паровоз типа 1-5-2 серии Та

Так как в Советском Союзе впервые создавался такой мощный паровоз, да ещё и типа 1-5-1 (впервые в советском паровозостроении), то конструкторами был использован американский опыт паровозостроения, в частности изучение поставленных в 1931 г. из США паровозов Та и Тб (с осевой нагрузкой 23 тс) и предоставленными американскими паровозостроительными заводами конструкторских документаций на эти паровозы. В ходе рабочего проектирования конструкторам требовалось окончательно определить конструкции деталей и узлов будущего мощного паровоза с целью снижения общего веса локомотива, а также при установленных жёстких ограничениях по сцепному весу и силе тяги, определить более оптимальное, нежели у американцев, сочетание мощностей котла, паровой машины и сцепного веса. Были применены новейшие, на тот период, конструктивные решения. Впервые в Советском Союзе создавался паровоз, оборудованный циркуляционными трубами, камерой догорания и механическим углеподатчиком (стокером), а также с брусковой рамой[сн 3].

Так в процессе изучения располагаемой конструкторской документации, предоставленной американскими паровозостроительными компаниями, было установлено, что использование на паровозе массивных необработанных деталей значительно увеличивает вес паровоза и зачастую ухудшает условия уравновешивания его движущихся масс. Помимо этого, ряд приборов и деталей американских паровозов новейшей разработки был недостаточно проверен и испытан в эксплуатации. С учётом вышеизложенного, использование американских конструктивных решений производилось со строго критическим подходом. Была выполнена большая исследовательско-конструкторская работа по отбору наиболее оптимальных для типа 1-5-1 конструктивных решений, на уровне деталей.[6] Кроме того, в целях облегчения конструкции паровоза были частично пересмотрены значения допускаемых напряжений для проектируемых деталей в сторону их обоснованного повышения, то есть, снижения неоправданно высоких запасов прочности в частях паровоза[15].

Вопрос о создании нового мощного паровоза стоял весьма остро, поэтому весь процесс рабочего проектирования находился под пристальным вниманием руководства Коммунистической партии Советского Союза. Помимо этого, 28 июня 1931 года Совет Народных Комиссаров издал постановление, в котором конкретно был указан тип ближайшего перспективного паровоза (1-5-1), с нагрузкой на ось 20 тонн, а также сроки пуска новых цехов Луганского паровозостроительного завода. Также в данном постановлении, с целью обеспечения необходимых условий для постройки новых паровозов, Высшему совету народного хозяйства (ВСНХ) и Народному комиссариату рабоче-крестьянской инспекции (НКРКИ) поручалось проверить производственные возможности существующих заводов[16].

Конструктивная схема паровоза 1П типа 1-5-1

Несмотря на высокую сложность технических задач, рабочий проект был завершён к 10 августа за рекордно короткий срок — 100 рабочих дней. Столь малый срок проектирования был обеспечен в немалой степени разделением труда среди проектировщиков, энтузиазмом молодых конструкторских кадров (тому же Лебедянскому тогда было 33 года), а также социалистическим соревнованием и ударничеством. В августе рабочие чертежи паровоза типа 1-5-1 были переданы на Луганский паровозостроительный завод[12][17][18].

В это же время некоторыми группами специалистов было начато проектирование более сильных паровозов. При этом их проектирование велось по двум путям: одни предлагали при сохранении 5 движущих осей увеличить сцепной вес за счёт увеличения нагрузки от оси на рельсы до 23 тс (так были созданы Та и Тб), другие же предлагали при сохранении нагрузки в пределах 20 тс увеличить число движущих осей до 7—8 (так были созданы АА и Я). Проектирование новых паровозов велось с расчётом на скорое внедрение на советских железных дорогах автосцепки, поэтому имели силу тяги 30 000—32 000 кгс, то есть значительно более высокую, чем допускаемую при применении винтовой сцепки (до 20 000 кгс). Однако разработка будущей автосцепки СА-3 затянулась и это привело к тому, что созданные опытные грузовые паровозы попросту не отвечали реальным технико-экономическим требованиям, предъявляемых к грузовым локомотивам. Данные локомотивы сделали лишь несколько опытных поездок, после чего были отставлены от работы, а впоследствии разделаны на металлолом[19].

Первый паровоз

Постройка

В августе 1931 года Партия и Правительство Советского Союза принимают решение о том, что первый паровоз будет построен в цехах Луганского паровозостроительного завода им. Октябрьской революции, а помогать ему в этом будут заводы «Красное Сормово» (штампованные листы для парового котла, пароперегреватель, гибкие связи Тэта), Коломенский (стальные цилиндры паровой машины и рама задней тележки) и Ижорский (боковые полотна основной рамы)[10][20]. В связи с этим, чертежи были направлены в цеха Луганского завода, где рабочие и инженерно-технические работники восприняли задачу постройки первого советского паровоза типа 1-5-1 с большим энтузиазмом. Строительство нового мощного паровоза преподносилось как борьба за социалистическую реконструкцию транспорта, а также как выполнение решений завершившегося в июне того же года пленума ЦК ВКП(б). Помимо этого дирекция, партийная и комсомольская организации завода, совместно с работниками транспортного органа государственного политического управления (ОГПУ) провели большую разъяснительную работу направленную на вовлечение рабочих, инженеров и техников Луганского завода в социалистическое соревнование и ударничество. Результатом этого стало следующее[20][21]:

  • в паровозосборочном цехе техники и инженеры организовали третью смену;
  • в котельном и паровозомеханическом цехах административно-технический персонал организовал ударные контрольные бригады;
  • в котельном цехе рабочие-клепальщики стали работать сверхурочно и в выходные дни;
  • на добровольной основе в строительство паровоза были вовлечены служащие конторы завода и работники других цехов;
  • вся общественность завода мобилизовалась на борьбу за улучшение качества обрабатываемых деталей и недопущение брака;
  • была организована «сквозная» комсомольская бригада, главной задачей которой было обеспечение широкого и углублённого общественного контроля, который бы, пронизывая всю работу по постройке первого паровоза 1-5-1, в свою очередь, обеспечивал бы проверку заготовленных и обработанных деталей;
  • через комсомольские организации ударники завода, совместно с работниками ОГПУ, вовлекли в социалистическое соревнование и ударную работу работников других заводов — поставщиков отдельных крупных деталей.

Строительство паровоза продвигалось весьма быстро, поэтому уже в начале октября был поставлен вопрос о имени для нового паровоза. И тогда ударная бригада «золотниковых тяг и маятников», бригадиром которой был Шугаев, предложила:

В честь одного из лучших наркомов путей сообщения, организатора борьбы за обновление и реконструкцию социалистического транспорта, чекиста, непримиримого борца с контрреволюцией, саботажем и вредительством, верного часового пролетарской страны, железного Феликса Дзержинского, назвать его именем паровоз типа 1-5-1, присвоив ему серию «ФД»[20][21].

Данное предложение, которое весьма ясно отражало итог совместной работы заводской общественности и ОГПУ, было единодушно поддержано рабочими и служащими завода. А в конце октября строительство нового паровоза, которому было присвоено полное обозначение ФД20-1 (20 — нагрузка от движущих осей в тс (НКПС в то время как раз ввёл новую систему обозначения серий), № 1) было завершено[10][20]. Многое во внешнем виде нового паровоза говорило о влиянии североамериканской школы паровозостроения (достаточно сравнить с паровозами Та и Тб американской постройки), в том числе: цилиндрический водоподогреватель, большая длина, решётчатый метельник (скотосбрасыватель), а также размещённый в центре фронтальной дверцы прожектор. Несколько портил вид 4-осный тендер, который никак не гармонировал с большим паровозом, но это объяснялось тем, что 6-осный тендер, который специально создавался для этого паровоза на Коломенском заводе, ещё не был готов, из-за чего, дабы не задерживать испытания, было решено использовать доработанный тендер от паровозов Су и Эу, а позже был спроектирован и построен другой 4-осный тендер для эксплуатации не только с первым ФД, но и первыми ИС (подробнее см.: Тендер для паровоза ФД20-1)[22]. Паровоз был построен в рекордно короткий по меркам мирового паровозостроения срок — 70 производственных дней. Создание нового мощного паровоза в такой короткий срок считалось успехом в индустриализации Советского Союза, а также крупным шагом в развитии советского локомотивостроения[10]. Тогда же слёт ударников Луганского завода рапортовал Коллегии ОГПУ:

Схема паровоза ФД20-1

Совместная работа с органами ОГПУ ещё раз убедила рабочие массы нашего завода, что органы Госполитуправления, выполняющие волю пролетариата, не только карают врагов социалистической стройки, но и принимают непосредственное активное участие в борьбе за реконструкцию нашего народного хозяйства; ваши представители, связавшись с заводскими организациями и широкими массами рабочих строивших паровоз, участвуя во всей общественно-политической жизни завода, являли собой примеры ударной работы. Для большей связи с вами, мы передаём в честь постройки паровоза ФД десять лучших ударников и производственников в ваши стальные ряды — в транспортные органы ОГПУ[20].

Демонстрационный показ паровоза

31 октября 1931 года новый паровоз был представлен общественности. Тогда в центре Луганска у сада «Имени 1-го Мая» были поставлены в ряд для обозрения 4 паровоза. Возглавлял эту колонну ФД20-1, далее шёл Эм (тип 0-5-0), за ним — Ов (тип 0-4-0), а замыкал всё это маневровый Ь (тип 0-3-0)[23].

4 ноября ФД20-1 повёл из Луганска в Москву специальный поезд с рабочей делегацией Луганского паровозостроительного завода. В состав делегации входило более десятка человек, которые являлись членами заводского профсоюза: конструктор Русак, бригадиры Шугаев, Ветошкин и Потапов, мастера Алдокименко, Матрохин, Кожухарь и Кувшинов, начальник цеха Тахтаулов, печник Степанов, а также рабочие Ховрич, Близнюк, Радин и другие. Возглавлял делегацию Дорохин — секретарь заводского партийного комитета[14]. Помимо этого, на боковинах тендера была нанесена надпись:

6 ноября паровоз прибыл на Киевский вокзал Москвы, где делегацию уже ждали представители правительства, а именно: Г. К. Орджоникидзе (председатель ВСНХ), К. Е. Ворошилов (Нарком по военным и морским делам), А. А. Андреев (Нарком путей сообщения) а также представители московских предприятий и ведомств. Делегация рапортовала представителям правительства о сдаче к XIV годовщине Великой Октябрьской революции в эксплуатацию первого паровоза типа 1-5-1 серии ФД, создание которого (рабочее проектирование и постройка) заняло рекордно короткий срок — всего 170 дней. После этого правительственные представители лично ознакомились с устройством паровоза и порасспросили членов делегации о его постройке[10][14]. Примечательно что когда паровоз ФД прибывал на вокзал, одновременно с ним к другой платформе (на видео это можно заметить) прибывал первый в СССР маневровый тепловоз с электрической передачей и групповым приводом — Оэл−6, но тогда на него не обратили должного внимания[24].

Испытания

В январе — феврале 1932 года были произведены заводские испытания ФД20-1, которые подтвердили, что он полностью удовлетворяет предъявляемым ему требованиям. Его мощность достигала 2600 л. с., а позже даже сумели получать 3000 л. с., что превосходило мощность паровоза серии Эу вдвое. Также на новом паровозе была достигнута расчётная величина парообразования 65 кг пара за 1 час с 1 м² поверхности нагрева, — впервые на советских паровозах, причём как советской постройки, так и импортных (для сравнения: расчётная величина парообразования котла паровоза Су составляет 37—42 кг пара за 1 час с 1 м² поверхности нагрева)[10][25].

В марте того же года паровоз для практических испытаний отправили на Южные железные дороги в депо Красный Лиман. В период с марта по май паровоз совершал опытные поездки на 26-километровом перегоне Яма — Нырково, на котором практически на всём протяжении был подъём в 9,5 ‰, что делало этот участок оптимальным вариантом для получения тягово-теплотехнических параметров. Опытные поездки проводились Институтом реконструкции тяги (ИРТ) НКПС, под наблюдением представителя ОГПУ — Р. П. Гриненко. Руководителем тягово-теплотехнических опытов был В. Ф. Егорченко, а его заместителем был В. Г. Голованов. Эксплуатационными опытами руководили А. А. Скорбященский и его заместитель — И. Н. Марчевский. Организацией всех этих испытаний и опытов занималась комиссия под председательством А. А. Терпугова. На основании этих испытаний были даны следующие замечания[26]:

  • применённый на паровозе стокер B-K (Би-Кэй) не даёт возможности отапливать паровоз смоченным (например, из-за дождя) углём;
  • при ручном отоплении наблюдается повышенный унос несгоревших частиц;
  • стокер отличается весьма грубым регулированием как машины, так и дутья, что осложняет его настройку при движении с малыми углами отсечки.
А. А. Рылов. «Сверхмощный паровоз ФД»

В июне начали проводить путевые испытания, целью которых было проверить воздействие паровоза на железнодорожный путь. В ходе этих испытаний ФД20-1 ездил не только по рельсам типа IIа (вес 38,4 кг/м), на которые был рассчитан, но и по более лёгким — IIIа (вес 33,5 кг/м). На основании этих поездок, институт дал следующее заключение:

Паровоз ФД, с точки зрения воздействия на путь в прямых его частях, обладает только одним недостатком — удалённой и перегруженной поддерживающей осью, могущей оказать неблагоприятное воздействие на путь и быть причиной для ограничения скорости при сильно сбитых стыках и наличии гнилых и просевших шпал. …паровоз этого типа (ФД) вполне оправдал себя при испытаниях, обеспечивает предельное использование пути (рельс типа III-а на песчаном балласте)[26].

В июле начались эксплуатационные испытания ФД20-1 на участке Красный Лиман — Балаклея (Южные железные дороги), в ходе которых он водил грузовые поезда наравне с паровозами Э[26]. Также, по предложению ОГПУ, на паровозе начались опыты с конусами различных типов и конструкций, с целью определения оптимального варианта для серийных паровозов, в результате которых было установлено, что наилучшие результаты были у четырёхдырного конуса с раздельным выхлопом пара из правого и левого цилиндров паровой машины[27].

В августе же приказом дирекции Южных дорог, № 149, было назначено время нахождения сквозного товарного поезда, ведомого паровозом ФД20-1, в пути между станциями Красный Лиман и Основа, в грузовом и порожнем направлениях, при установленных коммерческой скорости и весе состава[26].

Показатель Поезд, ведомый паровозом серии Э *1 Поезд, ведомый паровозом ФД20-1 *2
В грузовом направлении
Среднее время нахождения товарного поезда в пути, ч127,8
Коммерческая скорость, км/ч14,722,6
Расчётный вес состава, т17502000
В порожнем направлении
Среднее время нахождения товарного поезда в пути, ч107,3
Коммерческая скорость, км/ч17,724,2
Расчётный вес состава, т13001500
*1 — в соответствии с графиком движения, действующим с 22 мая 1932 года для паровозов серии Э.
*2 — в соответствии с приказом дирекции Южных дорог № 149 от 10 августа 1932 года для паровоза ФД20-1.

В целом же результаты всех испытаний оказались положительными и показали, что паровоз серии ФД может быть принят в качестве основной единицы грузового паровозного парка советских железных дорог[10].

Серийные паровозы

Предсерийные ФД20

Паровоз ФД20-2
Конструктивная схема паровоза ФД20-2

В начале ноября 1932 года, к XV годовщине Октябрьской революции, Луганский паровозостроительный завод выпустил второй опытный паровоз серии — ФД20-2. К нему был прицеплен тендер типа 17 — первый шестиосный тендер в истории советского паровозостроения. На его боковых стенках была нанесена надпись:

«Техника в период реконструкции решает всё». И. Сталин. ФД — подарок стране в XV годовщину октября от рабочих и ИТР Луганского завода им. «Октябрьской Революции».

Помимо тендера, второй паровоз серии отличался от первого ещё и тем, что на нём не был установлен водоподогреватель, а сухопарник впервые в советском паровозостроении был выполнен цельноштампованным (на ФД20-1 он был сварным). На октябрьские торжества 1932 года новый паровоз ФД20-2 прибыл в Москву, где был представлен руководству страны и широкой общественности. Паровоз вели два сменных экипажа (два машиниста, Полтавец В. А. и Куприй А. А., два помощника машиниста, Губа И. В. и Мышкин И. Д., два кочегара, слесарь). В состав бригады из 11 человек также входили инспектор НКПС и по совместительству представитель ОГПУ — Гриненко Р. П., Демидов П. И., бригадир Кохан И. Е., Кравченко И. В память об этой поездке сохранилась качественная фотография с изображением всей бригады на фоне паровоза, выполненная московским фотокорреспондентом. В марте следующего (1933-го) года ФД20-2 был отправлен на тягово-эксплуатационные испытания в депо Красный Лиман, завершённые в ноябре того же года[10][28].

Также в начале 1933 года завод выпустил третий опытный паровоз ФД20-3 конструкция которого претерпела очередные изменения, в том числе был увеличен объём песочницы и одновременно её перенесли вперёд ближе к сухопарнику (для облегчения задней части паровоза) и объединили с ним общим кожухом. Также существовал проект оборудования паровоза ФД20-3 водоподогревателем поверхностного типа (аналогичен водоподогревателю на ФД20-1), но этот проект так и не был реализован (подробнее см.: Эксперименты). Как и предыдущие два паровоза, ФД20-3 был отправлен в депо Красный Лиман для эксплуатации на участке Красный Лиман — Основа Южных железных дорог[10][28].

В августе того же года Луганский паровозостроительный завод приступил к серийному выпуску паровозов ФД в своих новых цехах, которые были специально построены для строительства мощных паровозов с брусковой рамой, и к концу года выпустил 20 паровозов (№ 4—23) установочной партии[10]. В отличие от первых трёх паровозов, у паровозов установочной партии претерпели изменения (с целью снижения веса) конструкции хвостовика главной рамы, заднего стяжного ящика и задней поддерживающей тележки. Данные изменения были внесены по рекомендации ЦЛПБ, что находилось при Коломенском заводе, с целью уменьшить вредное воздействие на путь от перегруженной поддерживающей оси, а также для улучшения динамических характеристик системы «паровоз — тендер» на скоростях 75—85 км/ч. Помимо этого был уменьшен с 1200 до 1050 мм диаметр поверхности катания поддерживающей колёсной пары, что было необходимо не только для снижения веса колёсной пары и тележки, но и для унификации с поддерживающими колёсными парами паровоза серии ИС, а также для получения дополнительного пространства для установки зольника. Данному изменению предшествовали практические испытания первых трёх паровозов, которые показали полное отсутствие перегрева подшипников поддерживающей оси[12].

Серийные паровозы ФД20

Паровозы первого заказа

В январе 1934 года завод выпускает паровоз ФД20-24, изготовление которого приурочивают к XVII съезду ВКП(б) («Съезду победителей»), а непосредственно во время прохождения самого съезда — юбилейный ФД20-25. Тем временем, на XVII съезде подводились итоги первой пятилетки, и было отмечено, что несмотря на высокий прирост грузооборота внутри страны, темпы его роста замедлились, причём во многом виной этому служил железнодорожный транспорт, который сам Иосиф Сталин подверг суровой критике:

Несмотря на увеличение материально-технической базы железнодорожного транспорта, последний не справляется с предъявляемыми требованиями народного хозяйства. Транспорт является узким местом, о которое может споткнуться, да, пожалуй, уже начинает спотыкаться вся наша экономика, и прежде всего наш товарооборот.И. В. Сталин[29]

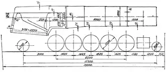
Основные размеры серийного ФД20 «первого заказа» с тендером типа 17

В результате на том же съезде был поставлен ряд программ по технической реконструкции железных дорог, среди которых прозвучало и следующее постановление:

Мощный паровоз ФД должен стать, во 2-м пятилетии, основной единицей товарного паровозного парка, а мощный паровоз ИС основной единицей пассажирского паровозного парка.[21]

В связи с этим, на Луганский паровозостроительный завод поступает задание в течение второй пятилетки, то есть до конца 1937 года, поставить на дороги НКПС 2400 паровозов серии ФД[30]. В том же году завод строит ещё 225 паровозов ФД20 (№ 26—250) и поставляет на дороги НКПС 181 паровоз (№ 24—204). В отличие от паровозов установочной партии, на серийных с № 150 неудобный в обслуживании ручной перевод кулисных камней был заменён пневматическим[10].

Паровозы второго заказа

В 1935 году завод наращивает производство и в ночь с 19 на 20 июля руководство завода рапортовало о том, что к 9-летней годовщине со дня смерти Феликса Дзержинского был выпущен паровоз ФД20-500[21].

Всего же в течение года завод выпускает 521 паровоз ФД20 (№ 205—725). По сравнению с паровозами 1934 года выпуска, на паровозах 1935 года было внесено несколько крупных изменений, из-за чего паровозы данного выпуска получили условное наименование «паровозы второго заказа». Основные отличия паровозов «второго выпуска» от «первого» следующие:

  1. Изменена конструкция дымовой трубы, конуса, искроудержателя и сифона;
  2. Для унификации с паровозами ИС была изменена конструкция фронтонного листа (сделан плоским) и дверки дымовой камеры (диаметр снижен до 1000 мм);
  3. Паровоздушный тормозной тандем-насос переместился с передней части главной рамы на фронтонный лист дымовой камеры. Со второй половины (на паровозах 1П/I см. ниже) вместо него стали применять паровоздушный тормозной насос двойного действия;
  4. Устанавливались автоматические аппараты для продувки жаровых и дымогарных труб. Эти аппараты-сажесдуватели (суперьеры) располагались симметрично по обеим сторонам топки на уровне площадок котла, вне будки машиниста.
  5. Во второй половине того же года на части паровозов (в том числе юбилейные ФД20-400 и ФД20-500), впервые в советском паровозостроении, были установлены дымоотбойники[сн 4] (использован опыт немецких паровозостроителей). Хотя дымоотбойники и исключали попадание дыма в будку машиниста, но отношение к ним было неоднозначным, так как во многих депо считалось, что их установка только портит обзор. Из-за этого при дальнейшем производстве паровозов ФД Луганский завод постоянно чередовал выпуск паровозов с дымоотбойниками и без них;
  6. С № 400 (май 1935-го) вместо воздухораспределителя автотормозов системы Казанцева стали применять воздухораспределитель системы Матросова.

Также во второй половине этого же года обозначение чертежей главного вида (и, следовательно, заводское обозначение паровозов) меняется с на 1П/I. Помимо этого, начиная с декабря на всех ФД центры ведущих колёсных пар (движущие колёсные пары, на которые тяговые усилия передаются от поршней напрямую через шатуны) стали выполнять дисковыми, вместо спицевых.

Конструктивная схема ФД20 «второго заказа» (тип 1П/II) без дымоотбойников и с усиленным буферным брусом

К концу года на самом заводе, который к тому времени сменил название на Ворошиловградский паровозостроительный, происходит серьёзное изменение — паровозотехнический отдел преобразуется в конструкторский, главным конструктором которого назначают Н. А. Максимова. Благодаря этому, дальнейшие улучшения конструкции теперь разрабатываются на самом Ворошиловградском заводе. В связи с этим, Коломенский завод передаёт на Ворошиловградский всю конструкторско-технологическую документацию по паровозам ФД. Помимо этого, в Ворошиловград передаётся вся документация унифицированных с ФД паровозов ИС, которые ранее Коломенский завод, из-за отсутствия надлежащего оборудования, мог выпускать лишь совместно с другими заводами[10].

В 1936 году Ворошиловградский паровозостроительный завод, параллельно с выпуском ФД, начинает строить и ИС (с № 8). Помимо этого, с 1936 года паровозы ФД20 начинают строиться по чертежам, имеющим обозначение 1П/II, а вместо тендеров «тип 17» стали прицеплять тендеры 6П (изначально они проектировались для паровозов ИС). Всего же в том году на заводе было выпущено 664 «Феликса Дзержинского» (№ 726—1389) — самый высокий годовой темп выпуска паровозов данной серии. Также завод продолжает улучшать конструкцию паровоза, в частности[10][31]:

  • С № 800 в рессорном подвешивании передней тележки были применены более сильные пружины.
  • С № 850 на тендерах вместо углеподатчика B-K системы ЦЛПБ-1 стали ставить С-1 системы инженера Рачкова.
  • С № 1134 для разгрузки поддерживающей оси за счёт увеличения веса передней части локомотива, стал применяться утяжелённый буферный брус.
  • С № 2000 была усилена рама, дисковыми стали центры всех движущих колёс, благодаря чему в противовесах уменьшилось количество свинца (с 1408 до 689 кг).
  • С № 2500 стали устанавливать цельносварные котлы, а с первой и пятой движущих колёсных пар были сняты возвращающие устройства.

Паровозы ФД21

Схема однооборотного пароперегревателя системы Чусова

Так как результаты работы мелкотрубного пароперегревателя Элеско-Е были не совсем удовлетворительными, то в качестве опыта паровозы ФД № 20-894, 20-895 и 20-939 (построены в 1936 году) были оборудованы широкотрубными пароперегревателями типа Л40 системы Чусова. Эксплуатация этих паровозов развеяла опасения многих конструкторов по поводу возможности появления течи жаровых труб, поэтому с середины 1940 года Ворошиловградский завод перешёл на серийное производство паровозов ФД с такими пароперегревателями. Для отличия паровозов с широкотрубными пароперегревателями от паровозов с мелкотрубными, у них после букв ФД были поставлены цифры 21 (вместо 20), таким образом, обозначение стало ФД21. В том же году в рессорном подвешивании в шарнирах вместо призм стали применять валики (примечательно, что в 1952 году на электровозах ВЛ22м произойдёт обратная замена — валики на призмы[32]). В 1940—1941 гг. некоторые паровозы ФД были оборудованы турбонасосами (вместо инжекторов) и смесителями для подогрева воды в баке тендера теплом отработанного пара[10]. В 1940 году завод выпустил юбилейный ФД21-3000, который передали в качестве подарка машинисту Николаю Александровичу Лунину, за то, что тот незадолго до этого инициировал внедрение новой методики эксплуатации локомотивов, при которой увеличивается объём работ, проводимый силами самой локомотивной бригады. Благодаря этому снижался простой паровоза в ремонтном депо, а также повышалось качество ремонта, так как «слабые места» каждого отдельного локомотива лучше всего знают локомотивные бригады, которые на нём работают регулярно (подробнее см.: Лунинское движение)[33].

Производство паровозов ФД всех разновидностей (ФД20, ФД21 и ФДк (см. ниже)) велось на Ворошиловградском паровозостроительном заводе вплоть до 1941 года. В связи с военными событиями, 4 незавершённых паровоза в 1942 году достраивал Улан-Удэнский паровозоремонтный завод. Производство паровозов ФД по годам приведено в нижеследующей таблице[10][14].

Выпуск паровозов ФД по годам
Год Построено Передано НКПС
Серия и количество,
штук
Номера Серия и количество,
штук
Номера
1931 1 — ФД20 20-1 1 — ФД20 20-1
1932 1 — ФД20 20-2 1 — ФД20 20-2
1933 22 — ФД20 20-3 — 20-24 21 — ФД20 20-3 — 20-23
1934 226 — ФД20 20-25 — 20-250 181 — ФД20 20-24 — 20-204
1935 521 — ФД20 20-251 — 20-771 521 — ФД20 20-205 — 20-725
1936 664 — ФД20 20-772 — 20-1435 664 — ФД20 20-726 — 20-1389
1937 540 — ФД20 20-1438 — 20-1975 541 — ФД20 20-1390 — 20-1545, 20-1547 — 20-1930, 20-1933
1938 485 — ФД20 20-1977 — 20-2461 485 — ФД20 20-1931, 20-1932, 20-1934 — 20-2416
1939 320 — ФД20 20-2462 — 20-2790 329 — ФД20 20-2417 — 20-2474, 20-2484 — 20-2754
9 — ФДк 20-2475 — 20-2483 2 — ФДк 20-1546, 20-2475
1940 145 — ФД20 20-2791 — 20-2883, 20-2885 — 20-2936 181 — ФД20 20-2755 — 20-2883, 20-2885 — 20-2936
117 — ФД21 21-2884, ФД21-2937 — 21-3052 80 — ФД21 21-2884, 21-2937 — 21-3015
1941 202 — ФД21 21-3053 — 21-3254 202 — ФД21 21-3016 — 21-3217
1942 4 — ФД21 21-3218 — 21-3220, 21-3222 (достроены УУПРЗ)
Всего 3213 (2925 — ФД20, 286 — ФД21, 2 — ФДк)
Примечания 1. ФД20-1976 был переделан в теплопаровоз ТП1.
2. Паровозы с номерами 21-3221, 21-3223 — 21-3254 были разобраны в период 1941—1942 гг.

Конструкция

Паровоз ФД относится к типу 1-5-1, то есть у него 5 движущих осей, закреплённых в одной жёсткой раме, а также одна бегунковая (передняя) и одна поддерживающая (задняя) оси, которые, для лучшего вписывания в кривые, находятся на специальных тележках. Паровоз приводится в движение простой паровой машиной, для привода которой используется перегретый пар (котёл оборудован пароперегревателем), что позволяет получить экономию в топливе. В конструкции паровоза применён ряд новаторских, для советского паровозостроения, решений. Так, цилиндры паровой машины отлиты в виде полублоков, которые совмещают в себе не только собственно цилиндры, но и золотниковые камеры, переднее междурамное скрепление и опору дымовой коробки котла. Ряд элементов конструкции паровоза ФД позже был использован при создании всех новых серий советских паровозов, среди которых особо выделяется паровоз серии ИС[10]. Паровоз ИС проектировался из расчёта применения максимально возможного количества взаимозаменяемых частей с ФД, поэтому у этих двух паровозов котёл, паровая машина, буксы, оси и даже схема рессорного подвешивания (хотя у них были разные осевые формулы) были одинаковыми[3]. Из других серий паровозов, при создании которых использовались элементы конструкции паровоза ФД, были следующие: СО, Л, ЛВ, а также скоростной паровоз № 6998.

Несмотря на свою высокую мощность и большую длину, паровоз ФД полностью вписывается в европейский габарит подвижного состава, который меньше аналогичного габарита на советских железных дорогах. В официальных документах и в технической литературе какое-либо объяснение этой конструктивной особенности паровоза отсутствует, а объясняется она тем, что таким образом была учтена доктрина ведения боевых действий с потенциальным противником на чужой европейской территории с особенностями сооружений на зарубежном железнодорожном пути, и осуществление военных перевозок РККА без использования местного локомотивного парка[34].

Эксплуатация

Вторая и третья пятилетки

Первые ФД направлялись в депо станции Красный Лиман Южных железных дорог (после их разделения — Северо-Донецкой дороги), которое таким образом стало опытно-экспериментальной базой по накапливанию опыта интенсивной эксплуатации паровозов этой серии. Также в это депо для работы в качестве машинистов-испытателей были направлены машинисты Луганского завода. В 1934 году XVII съезд ВКП(б) объявляет ФД основным грузовым паровозом, что должно было послужить основанием для более широкого распространения «Феликсов Дзержинских». Однако этому препятствовало крайне неудовлетворительное техническое состояние большинства советских железных дорог. На это указывают, например, данные из годового отчёта Госплана СССР за 1931 год, в котором указано, что рельсы типа Іа (43,5 кг/пог. м) были уложены лишь на 2,1 % протяжённости главных путей, тогда как на 83 % были уложены рельсы типа IIIа (33,5 кг/пог. м) или даже более лёгкие. Количество шпал на 1 км пути составляло около 1440 шт, при этом более 13 % из них были прогнившими, а в качестве балласта использовался мелкозернистый песчаник, который относительно легко выветривался[35]. Всё это значительно ограничивало возможность эксплуатации нового мощного паровоза и не давало поднять технические скорости поездов. Фактически паровоз ФД опережал технические возможности советских железных дорог того времени. Помимо прочего, большинство депо на то время не имели возможности по размещению таких длинных паровозов (длина ФД с 6-осным тендером достигала 29 метров).

В 1935 году Андрея Андреева на посту Народного комиссара путей сообщения сменяет Лазарь Каганович, при котором путём укрепления дисциплины (за счёт усиления ответственности и ужесточения наказаний, вплоть до репрессий), началось улучшение железнодорожного хозяйства. Также к тому времени началось массовое производство рельсов тяжёлых типов (Іа и IIа), эпюра была увеличена до 1840, а в качестве балласта стали использовать щебень. К 1937 году рельсы типов Іа и IIа были уложены уже на 20 % от общей протяжённости главных путей[36], а во многих депо возвели новые здания паровозных стойл[37]. Благодаря этому, в 1937 году паровозами ФД уже обслуживались такие направления как Красный Лиман — Харьков — Москва, Верховцево — Нижнеднепровск-Узел — Ясиноватая или Волноваха, Харьков — Лозовая — Славянск — Ясиноватая, Рыбное — Мичуринск, Харьков — Льгов — Брянск, Витебск — Ленинград, Мичуринск — Лиски — Ростов, Москва — Елец — Валуйки и другие[10].

Всего же на начало 1937 года паровозы ФД работали на следующих дорогах[10]:

и прочие.

В результате дальнейшей реконструкции железнодорожного хозяйства, ФД стали обслуживать всё новые направления, в том числе: Москва — Вязьма — Орша, Пенза — Поворино, а также различные участки железных дорог Сибири и Урала. Всего же 1940 году ФД работали уже на 24 из 43 советских железных дорог, существовавших в то время, из них в период с 1938 по 1940 год добавились следующие[10]:

В период Великой Отечественной войны

В начале Великой Отечественной войны, из-за быстрого продвижения нацистских войск, большинство паровозов ФД были переведены вглубь страны, в основном на железные дороги Сибири, а также на Южно-Уральскую железную дорогу. Многие из них уже были повреждены, поэтому работники депо восстанавливали и включали эти паровозы в работу[39][40]. 221 паровоз не успели эвакуировать и они оказались на оккупированной территории[41].

В условиях войны машинисты, учитывая опыт Лунина и Кривоноса, старались полностью использовать возможности паровозов, в том числе и ранее скрытые. Так, в 1943 году на Южно-Уральской железной дороге курганский машинист Иван Блинов, который работал на ФД20-2697, инициировал начало соцсоревнования за скоростную кольцевую езду и экономию топлива, а также по вождению тяжеловесных поездов. Благодаря этому, машинисты на паровозах ФД стали водить через Уральские горы составы массой 4000—5000 т (первым был златоустовский машинист Максим Куприянов), тогда как норма была 2000 т. В результате, только в том же году по дороге было проведено 9 тысяч тяжеловесных составов, перевезено 7 миллионов тонн груза. Сам машинист Блинов в 1943 году был удостоен звания «Герой Социалистического Труда»[39]. Также с «Феликсом Дзержинским» связывают немало подвигов. Например, в одном из номеров журнала «Техника — молодёжи» за 1974 год описывается случай, когда ещё в 1941 году в Донецкой области немецкий бронепоезд сумел проскочить в тыл сквозь советскую линию обороны. Тогда для того, чтобы его остановить, один из пожилых машинистов заскочил в один из ФД и направил 260-тонный паровоз на вражеский бронепоезд, в результате чего, ценой собственной жизни, отправил последний под откос[42]. В 1943 году уже упоминаемый машинист Николай Лунин на полученную годом ранее Сталинскую премию приобретает эшелон угля массой в тысячу тонн. 2 апреля данный поезд, который вёл сам Лунин на своём ФД21-3000, отправился из Новосибирска и вскоре прибыл в освобождённый Сталинград[43].

Локомотивная бригада паровоза ФД20-2799 (депо Ожерелье, Московско-Донбасская железная дорога, 1941—1942 год). Железнодорожники одеты в форму, характерную для персонала паровозных колонн

Также имеются, хотя и косвенные, свидетельства (в том числе фотографии) того, что паровозы ФД, несмотря на свой высокий вес, работали в составе паровозных колонн, которые обычно формировались из паровозов серий Э и СО. Так, на Южно-Уральской железной дороге, где ФД составляли большинство, по инициативе машиниста П. А. Агафонова была сформирована колонна паровозов имени Государственного комитета обороны, состоящая из 12 паровозов. За 3 года войны она перевезла сверх нормы полтора миллиона тонн грузов, благодаря чему было сэкономлено 5000 т угля. Также колонны имени ГКО формировались под руководством машинистов Блинова и Утюмова в Кургане, Тефтелева в Троицке, а всего на Южно-Уральской железной дороге числилось 22 паровозные колонны[39].

Однако на ряде дорог с эксплуатацией паровозов ФД возникли осложнения. Так, на большинстве железнодорожных путей в Сибири были уложены рельсы типов IIIа и легче, что серьёзно ограничивало эксплуатацию ФД. Тогда Центральное управление паровозного хозяйства Народного комиссариата путей сообщения выдвинуло предложение по снижению нагрузок от осей паровозов ФД на рельсы с 20 до 18 тс путём постановки дополнительной свободной (бегунковой или поддерживающей) оси. В результате рассмотрения данного предложения был создан проект по переделке паровозов ФД из типа 1-5-1 в тип 1-5-2, для чего одноосная поддерживающая тележка заменялась двухосной. В июле 1943 года на Улан-Удэнском паровозоремонтном заводе была начата переделка паровозов ФД (переделке подвергались паровозы с неутяжелённым буферным брусом, то есть до № 1134) по этому проекту, переделанные паровозы при этом получали обозначение ФДр («разгруженные»)[44]. В 1944 году переделки были прекращены, так как паровозы ФД стали возвращать на освобождённые после оккупации и подготовленные к обращению на них тяжёлых паровозов железные дороги. Всего в паровозы ФДр было переделано 85 локомотивов, которые к концу войны были вновь переделаны в обычные ФД (тип 1-5-1)[10].

По имеющимся данным, всего за период войны было потеряно 282 паровоза серии ФД. В первые послевоенные годы значительную часть из них отремонтировали и возвратили в работу, в том числе 62 паровоза прошли капитально-восстановительный ремонт; 82 локомотива были списаны, как не подлежащие восстановлению[41].

Послевоенное время

Паровоз ЛВ

После завершения войны, применение паровозов ФД поначалу также было ограничено, ввиду того, что не все главные пути были подготовлены к обращению таких тяжёлых паровозов. К тому же в 1945 году появился паровоз «Победа» (в 1947 его переименуют в Л), который был создан на основе конструкции ФД, но был легче и экономичней, а в 1952 году на основе Л был создан паровоз ОР18 (ЛВ), который почти не уступал ФД по тяговым параметрам, а нередко и превосходил. Так, с августа 1953 по апрель 1954 года на участке Люблино — Серпухов Московско-Курско-Донбасской железной дороги были проведены эксплуатационные испытания паровоза ОР18-01 и сравнение полученных показателей с показателями работавших на этом участке серийных ФД. В результате были достигнуты следующие результаты: средний вес поездов для паровоза ОР18-01 был на 2 % больше, чем для ФД (1899 т против 1859 т), а вес тяжеловесных поездов на 8,7 % больше (2750 т против 2531 т), средняя техническая скорость возросла на 0,2 км/ч (с 41,5 до 41,7 км/ч). Помимо прочего, на паровозе ОР18 по сравнению с ФД была достигнута экономия в угле — 24,9 %, то есть каждая четвёртая поездка осуществлялась за счёт сэкономленного угля[45].

Между тем, дальнейший рост весов поездов требовал применения кратной тяги. Например, на Юго-Восточной железной дороге на линии Лихая — Россошь при обслуживании поездов паровозами ФД требовало применения толкачей в семи пунктах. Более того, на участке Каменская — Лихая, из-за высокого веса поездов и сложного профиля, требовалось применение тройной тяги паровозами ФД: 2 паровоза в голове поезда и один в хвосте[40]. В результате в 1953 году на Ворошиловградском паровозостроительном заводе на основе конструкций паровозов ФД и ЛВ были разработаны и построены первые паровозы типа 1-5-1 серии ОР21, которые имели сцепной вес 105 т (с включённым увеличителем сцепного веса — 115 т), которые предназначались для замены паровозов ФД[46]. Однако эра паровозов уже подходила к концу. В феврале 1956 года на XX съезде Коммунистической партии Советского Союза было принято решение о прекращении дальнейшего строительства паровозов и широком внедрении тепловозов и электровозов[47]. В связи с этим паровозы ФД стали поначалу постепенно, а в 1960-х интенсивно отстранять от работы и исключать из инвентаря[10].

ФД-1979 в Китайском железнодорожном музее

Также в 1958—1960 гг. большое количество (по разным оценкам, от 950 до 1057) паровозов были подарены Китайской Народной республике, где их переделали на колею 1435 мм и ввели в эксплуатацию[10]. На китайских дорогах ФД получили поначалу обозначение серии FX, так как серия FD в то время уже была занята другими паровозами. В 1971 году бывшие советские ФД всё-таки получили обозначение серии FD. В первой половине 1980-х их ещё можно было встретить на магистральных железных дорогах Китая. Часто за ФД ошибочно принимают китайский паровоз QJ, который был создан на основе советских ФД и ЛВ (но по параметрам он ближе к ОР21) и выпускался китайскими заводами с 1956 года. Также есть данные, что часть паровозов ФД была отправлена в Корейскую Народно-Демократическую Республику[48][49].

Эксперименты с паровозами

  • Для уменьшения уноса несгоревших частиц угля в трубу, в 1940 году в депо Ховрино Октябрьской железной дороги на одном из паровозов ФД был поставлен углеподатчик с передней подачей топлива, то есть из-под свода к шуровочному отверстию (а не наоборот)[10].
  • В 1948 году в депо Люблино Московско-Курской железной дороги на паровозе ФД20-1599 было установлено устройство для размола и дожигания изгари в виде пыли. Впоследствии по аналогичному принципу были оборудованы паровозы ФД20-125 и ФД20-1883[10].
  • В 1951 году в депо Основа Южной железной дороги паровоз ФД20-802 был оборудован устройством, которое позволяло применять комбинированное отопление — фракционированным углём в слое и пылью, которая приготовлялась на тендере (о пылеугольном отоплении см. ниже). Летом 1952 года на экспериментальном кольце ВНИИЖТа были проведены наладочные испытания, в ходе которых выяснилось, что данное устройство неработоспособно, поэтому оно было снято с паровоза[10].
  • В 1954 году конструкторское бюро Главного управления локомотивного хозяйства МПС разработало проект модернизации паровозов ФД, согласно которому предусматривалось повышение давления в котле на 1 кгс/см², постановку увеличителя сцепного веса (в то время железнодорожные пути уже допускали осевые нагрузки до 23 тс), водоподогревателя и так далее. В том же году 2 паровоза ФД были модернизированы по этому проекту[10].

Нереализованные проекты

Схема водоподогревателя на паровозе ФД20-3 (проект)
  • В период постройки 3-го паровоза серии (ФД20-3) в конструкторском бюро Коломенского завода был составлен проект оборудования этого паровоза водоподогревателем поверхностного типа, с целью проверки надёжности работы данного агрегата в условиях низких температур (в мороз). Внешне он был бы похож на водоподогреватель первого паровоза, но в отличие от него, для подогрева всасывающей водяной трубы и рубашки водяных цилиндров насоса водоподогревателя, отбирался не насыщенный пар, из пароразборной колонки, а перегретый, от колонки перегретого пара. Для этого, согласно проекту, между колонкой и насосом устанавливался управляемый вентиль с приводом из будки. Также в нагнетательной трубе, между насосом и батареей, добавлялся обратный клапан, который должен был препятствовать вытеканию воды при осмотре насоса. Пароподводящие трубы, от цилиндров к батарее, должны были быть проведены внутри дымовой коробки, благодаря чему исключалось бы их замерзание при движении паровоза. Также по проекту переделывалась конденсационная труба тендера, а для слива конденсата добавлялся запорный клапан с ножным приводом из будки машиниста. Ввиду различных причин проект так и остался на бумаге[28].
ТП1, выпущенный в 1939 году по схеме Cab Forward
  • В 1939 году Ворошиловградским паровозостроительным заводом был разработан эскизный проект паровоза ФД с двумя кабинами машиниста (так называемая схема Cab Forward). Согласно проекту, во второй кабине (она располагалось в передней части локомотива перед котлом) должны были размещаться органы управления, которые бы дублировали органы управления в задней кабине (со стороны топки). Такое расположение кабины теоретически должно было облегчить условия работы машинистов, однако дальше эскизного проекта работа так и не продвинулось[10]. Сама идея о двух кабинах позже была реализована на теплопаровозе ТП1.
  • В 1941 году на Ворошиловградском паровозостроительном заводе под руководством инженера В. В. Филиппова был разработан проект паровоза типа 1-5-1, унифицированного по конструкции с паровозом ФД21, но имевший осевую нагрузку не более 18 тс, что позволяло эксплуатировать его на всей сети железных дорог Советского Союза. Проект не был реализован из-за начавшейся Великой Отечественной войны. Впоследствии его использовали при проектировании паровоза П32 «Победа» типа 1-5-0[50].

Паровозы с пылеугольным отоплением

В 1935 году на Ворошиловградском паровозостроительном заводе, под руководством инженера П. А. Сороки, был разработан проект оборудования паровоза серии ФД пылеугольным отоплением. Угольная пыль при этом приготовлялась на центральной пылеприготовительной станции (по типу переоборудованного в 1933 году паровоза Эу701-83)[51]. В том же году по этой схеме был оборудован паровоз ФД20-400, который затем поступил в депо Кашира и снабжался угольной пылью от Каширской ГРЭС. Так как из-за применения мелкотрубного пароперегревателя Элеско-Е (см. ниже), задняя трубная решётка быстро забивалась золой, в 1936 паровоз был переведён на слоевое отопление. В том же году тендер от этого паровоза был прицеплен к паровозу ФД20-894 (первый ФД с пароперегревателем Л40 системы Чусова). Результаты применения пылеугольного отопления на паровозе с широкотрубным пароперегревателем были удовлетворительными, но возникла проблема в снабжении паровоза угольной пылью. Поэтому на тендере была установлена паровая мельница[10]. В ней кусковой уголь струёй пара направлялся на металлическую плиту, разбивался о неё и в виде пыли подавался в топку[52]. После паровоз ФД20-894, который таким образом стал первым в СССР паровозом с индивидуальным пылеприготовлением, поступил для испытаний на Московско-Донбасскую железную дорогу, где использовался как стенд-лаборатория Научно-исследовательского института железнодорожного транспорта. По результатам этих испытаний, в 1940 году Ворошиловградский паровозостроительный завод выпустил паровоз ФД20-2759 также с индивидуальным приготовлением (по проекту инженеров П. И. Аронова, В. В. Филиппова и других). Также на Воронежском паровозоремонтном заводе несколько серийных паровозов ФД были оборудованы пылеугольным отоплением с индивидуальным приготовлением пыли. После Великой Отечественной войны паровозы были вновь переведены на слоевое отопление[10].

Паровозы ФДк с конденсацией отработанного пара

К концу 1930-х на ряде советских железных дорог с плохим водоснабжением (Ашхабадская, Закавказская, Ташкентская и другие) эксплуатировались паровозы с конденсацией пара. В отличие от обычных паровозов, на этих отработанный пар не выбрасывался в дымовую трубу (для повышения тяги воздуха), а поступал по трубе в специальный тендер-конденсатор, где обращался в воду и поступал обратно в котёл. Конденсация пара позволяла получить экономию не только в воде, но и в топливе, а заодно уменьшить износ котлов и количество накипи.[53]

Паровоз серии ФДк

Успешные результаты эксплуатации таких паровозов привели к тому, что было решено выпустить партию из 10 паровозов серии ФД с конденсацией пара — ФДк. В начале 1939 года Ворошиловградский паровозостроительный завод выпустил первый такой паровоз с тендер-конденсатором ФДк20-1546. В том же году был построен и второй паровоз — ФДк20-2475. Рабочая масса обоих локомотивов по сравнению с серийными возросла со 137 до 145 т, а сцепная — до 110 т. Для опытной эксплуатации оба паровоза были отправлены в депо Люблино Московско-Курской железной дороги. Однако в период работы на них выявился целый ряд конструкционных недостатков. Так, наблюдался чрезвычайно быстрый износ лопаток вентиляторов дымососов (после пробега 1400—1600 км). Высокие осевые нагрузки (22 тс) приводили к износу рельсов. Помимо этого выяснилось, что шестиосные тендер-конденсаторы имеют недостаточную поверхность охлаждения для таких мощных паровозов, что требовало ещё больше увеличить и без того громоздкий тендер. В результате от дальнейшей постройки паровозов ФДк было решено отказаться, а опытные паровозы вскоре были переделаны в обычные ФД[54].

Паровоз повышенной экономичности ФД21-3128м

Паровоз ФД21-3128м с котлом системы С. П. Сыромятникова

В 1940-х академик С. П. Сыромятников (инженер-теплотехник, основоположник научного проектирования паровозов) разработал проект высокоэкономичного паровоза. По его мнению, экономичность паровозов могла бы значительно повыситься, если на паровозе установить водоподогреватель и газовый воздухоподогреватель, а заодно повысить температуру перегретого пара до 450 °C. Для повышения температуры пара до таких значений требовался пароперегреватель гораздо мощнее, чем те, что использовались на обычных паровозах. Сыромятников считал, что наиболее подходящим был бы поперечнообтекаемый пароперегреватель, который к тому же достаточно надёжен и экономичен. Но такой пароперегреватель занимал довольно большой объём, поэтому академик предложил укоротить цилиндрическую часть котла, а на освободившееся пространство установить пароперегреватель с воздухоподогревателем. Так как передняя половина цилиндрической части котла производила, согласно исследованиям, не более 15 % общего количества пара, то укорочение этой части котла лишь незначительно снижало экономичность паровоза, но зато позволяло получить значительный выигрыш в массе, то есть устранить так называемую «весовую напряжённость». Согласно окончательной схеме, нагретый воздух проходил через укороченную трубчатую часть котла, поперечнообтекаемый пароперегреватель и после через трубчатый воздухоподогреватель[55].

Устройство и основные размеры ФД21-3128м

В 1948 году экспериментально-конструкторское бюро Московского электромеханического института инженеров железнодорожного транспорта разработало технический проект паровоза высокой экономичности типа 1-5-2. Однако, чтобы не строить с нуля новый паровоз, проект переработали и по окончательному варианту экипажная часть и паровая машина заимствовались от паровоза ФД. В 1951—1952 гг. Ворошиловградский паровозостроительный завод по этому проекту провёл работы по переоборудованию серийного паровоза ФД21-3128, которому присвоили обозначение ФД21-3128м. С завода опытный паровоз повышенной экономичности был направлен в Ворошиловград, а в начале января 1953 года на участке Ворошиловград — Дебальцево была проведена его первая экспериментальная поездка[55].

На опытном паровозе по сравнению с серийными ФД21 были уменьшены испаряющая поверхность котла (с 247,7 до 121,9 м², число дымогарных труб при этом возросло с 98 до 251, жаровые трубы были убраны) и площадь колосниковой решётки (с 7,04 до 6,61 м²), но возросла площадь пароперегревателя (со 123,5 до 157,2 м²). Благодаря переделке, значительно уменьшились объёмы воды (с 12,9 до 8,9 м³) и парового пространства (с 6,2 до 2,9 м³). Также снизился объём вредного пространства цилиндров паровой машины — с 12—13 до 8 %. Рабочая масса локомотива возросла до 142 т, а сцепная — до 107,5 т. Основные размеры паровой машины (диаметр цилиндров 670 мм, ход поршня 770 мм), давление пара в котле (15 кгс/см²), диаметр движущих колёс (1500 мм) и конструкционная скорость (85 км/ч) остались без изменений. При испытаниях паровоз ФД21-3128м по сравнению с серийными паровозами ФД позволял получать экономию топлива от 7 до 18 %. Из-за прекращения строительства паровозов, экспериментальные поездки были прекращены, а в 1957 году опытный локомотив был исключён из инвентаря[55].

Оценка паровоза

Паровоз ФД был создан в конце первой пятилетки, когда бурный рост советской промышленности требовал от железнодорожников повышения провозной способности железных дорог. В новом паровозе были реализованы три основных замысла: максимальное использование существующей железнодорожной сети без коренной реконструкции, применение винтовой сцепки, повышение скорости и веса товарных поездов[42]. Паровоз ФД был первым советским паровозом, который был спроектирован с осевой нагрузкой 20 тс[сн 5] (против 18 тс, как у паровозов Э и СО). Его сцепной вес достигал 104 т — самый высокий среди всех серийных советских паровозов (паровозы со сцепной массой 115—160 т (23, АА, ОР23, П38 и другие) так и остались опытными). Благодаря этому сила тяги паровоза ФД составляла 21 200 кгс (расчётная — 23 300 кгс). Мощность паровоза ФД на скорости 30 км/ч составляла 3000 л. с. — вдвое больше, чем у паровоза Э[10]. Сравнение характеристик паровоза ФД с некоторыми другими советскими локомотивами приведено в таблице.

Серия Сцепной вес, т Расчётная сила тяги, кгс Расчётная скорость, км/ч
Паровозы
ФД101—10421 200—23 30023
Э81—8318 100—19 00013—16
СО8719 90020
ЛВ*190—9821 30023
Тепловозы
ТЭ1123,916 00012
ТЭ217022 00017
ТЭ3*212620 20020
М6211620 00020
Электровозы
ВЛ1911720 00037
ВЛ22м*313223 90036,1
Примечания:
*1 — с включённым увеличителем сцепления.
*2 — данные для одной секции.
*3 — данные для электровозов с передаточным числом редуктора 4,46.

Но высокий сцепной вес был и одним из основных недостатков ФД. Паровоз не мог эксплуатироваться почти на трети железных дорог страны[36], а после окончания войны — на большинстве магистральных железных дорог (восстановленные железнодорожные пути допускали обращение локомотивов с осевыми нагрузками не выше 18 тс). В 1956 году на железных дорогах СССР был начат массовый переход на тепловозную и электровозную тягу, а существующие паровозы направляли для работы на второстепенные пути, либо на манёвры. Но паровозы ФД, из-за высоких осевых нагрузок, для этой службы уже не подходили, поэтому их переводили в резерв, либо исключали из локомотивного парка[56].

Экипажная часть

На паровозе ФД впервые в советском паровозостроении была применена брусковая рама. По сравнению с ранее применявшимися листовыми рамами, рамы данного типа имеют бо́льшую поперечную прочность, что позволяет уменьшить число промежуточных скреплений (на ФД их меньше, чем на Э), а также применить паровые цилиндры блочной конструкции. Вместе с тем такой тип рамы более трудоёмкий в изготовлении, так как одна лишь обработка на станках в 6—8 раз дольше, чем для листовых рам. Также такой тип рам требует более тщательной сборки[57]. По этой причине целый ряд крупных заводов не могли серийно производить этот паровоз, а на Луганском паровозостроительном заводе пришлось возвести новые сборочные цеха (это же было одной из причин появления паровоза серии СО)[58].

Отдельным недостатком рамы паровоза ФД оказалась недостаточная прочность. При разработке рамы конструкторы опирались на американский опыт создания таких рам, поэтому выбрали толщину полотен 125 мм (у паровозов Та и Тб толщина полотен составляла 140 мм). Однако американские заводы для изготовления рам использовали сталь с присадками ванадия и никеля, а в СССР — обычную углеродистую (Сталь-5)[18]. В данном случае следовало увеличить толщину полотен (у выпущенного в 1945 году паровоза П-0001 типа 1-5-0 со сцепным весом 90 т толщина полотен рамы составляла уже 140 мм)[50], однако это сделано не было (в основном из-за весовых ограничений), что привело к снижению надёжности её конструкции[56].

Это был не первый опыт проектирования русскими инженерами паровоза с брусковой рамой. Так, ещё в 1915 году был спроектирован паровоз типа 1-5-0 серии Е с брусковой рамой, однако его изготовление велось не на российских, а на американских заводах[59].

Паровой котёл

Как уже указывалось выше, котёл паровоза имел очень хорошую производительность — до 65 кг пара с 1 м² за 1 час. Его большая площадь топки позволяла применять низкосортные сорта угля (высокосортный уголь в то время требовался для металлургической промышленности)[10]. Но общий коэффициент полезного действия котла был относительно низким — не более 61 % для механического отопления и 68 % — для комбинированного (для сравнения, КПД котла паровозов Оп и Оч достигал 70—75 %, а паровозов Э — до 82 %)[60]. Причины такого низкого КПД заключались в неудовлетворительной работе механического углеподатчика, из-за чего наблюдался большой унос несгоревшего топлива[10], а также из-за применения камеры догорания[61] и мелкотрубного пароперегревателя (Элеско-Е), который давал температуру перегретого пара на 5—9 % ниже по сравнению с ранее применявшимися типами пароперегревателей (Чусова и Шмидта)[62]. Повысить КПД котла удалось применением углеподатчика новой конструкции и заменой пароперегревателя на широкотрубный (Л40, паровозы ФД21), что однако привело к увеличению потерь с уходящими газами (на 12—14 %), но тем не менее позволило повысить экономичность паровоза примерно на 7 %[10]. Применение стальной топки, вместо медной (в то время медь в СССР использовалась в больших количествах для электрификации), уменьшило массу котла, но снизило надёжность, так как сталь менее устойчива к различным температурным деформациям[63].

Паровая машина

Применение блочных паровых цилиндров и их отливка заодно с золотниковыми камерами, несмотря на некоторое усложнение процесса отливки, позволило упростить производство за счёт уменьшения числа деталей, особенно крепёжных, что также позволило повысить надёжность этого узла[64]. Также на ФД был применён парораспределительный механизм Гейзингера (Вальсхарта), который применялся на русских паровозах с 1901 года (например, Ов и Нв) и достаточно хорошо зарекомендовал себя в эксплуатации[65].

Итог

В целом паровоз ФД можно охарактеризовать, как тяжёлый и мощный, но сложный, для своего времени, в производстве и ремонте паровоз с относительно простым движущим механизмом, высокопроизводительным, но неэкономичным паровым котлом и слабой экипажной частью.

Транспортные происшествия

  • 19 октября 1942 года — крушение на разъезде Пульниково с участием двух паровозов ФД.
  • 7 декабря 1946 года — крушение на станции Обь с участием ФД20-1707.
  • 28 апреля 1957 года — столкновение ФД 20-2212 с автобусом ЗИС-155 на охраняемом переезде 28-го километра перегона Кирзавод — Чурилово Челябинского железнодорожного узла[66].

Сохранившиеся паровозы

[67][68]

В рабочем состоянии

Паровоз ФД на украинской почтовой марке
Паровоз ФД на узбекистанской почтовой марке
  • ФД20-1653 — локомотивное депо Баотоу (Китай).[69] (требует проверки)
  • ФД20-1679 (настоящий номер ФД20-1562) — локомотивное депо Сальск.
  • ФД20-2109 — локомотивное депо Сальск. Восстановлен в 2019 г.

В музеях

См. также

Паровоз QJ

Примечания

Комментарии

  1. Слово «Элеско» происходит от прочтения аббревиатуры фирмы Locomotive Superheather Company — LSCo (Эль-Эс-Ко)
  2. Также, возможно, были привлечены и инженеры из ТБ ОГПУ.
  3. Первым паровозом с брусковой рамой русской постройки был пассажирский паровоз типа 2-2-0 серии Бп (с 1912 года — Дж), выпускавшийся Ростовскими железнодорожными мастерскими с 1902 года по 1906, то есть в период Российской империи
  4. Дымоотбойники — наклонные щиты, устанавливаемые в передней части паровоза. Служат для отвода дыма из трубы вверх (за счёт набегающего при движении воздуха), предотвращая тем самым его попадание в кабину машиниста.
  5. Это был не первый выпущенный в СССР паровоз с такими высокими осевыми нагрузками. У выпущенных в 1925 году первых паровозов серии Су, из-за неправильно произведённых окончательных расчётов, нагрузка на поддерживающую и заднюю ведущую оси достигала 20 тс, вместо проектных 18 тс.

Источники

  1. Русский железнодорожный сленг. Паровоз ИС. Дата обращения: 3 марта 2009. Архивировано 10 сентября 2011 года.
  2. Железнодорожный сленг, Краткий словарь. Дата обращения: 19 декабря 2009. Архивировано из оригинала 17 июля 2012 года.
  3. 1 2 Раков В. А. Паровозы серии ИС // Локомотивы отечественных железных дорог 1845—1955. — 1995. — С. 294—297.
  4. 1 2 Раков В. А. Паровозы серий Еф, Ес, Ек и Ел // Локомотивы отечественных железных дорог 1845—1955. — 1995. — С. 192—197.
  5. 1 2 Техническая энциклопедия. — 1931. — Т. 15.
  6. 1 2 Струженцов И. М. Мощные паровозы. М.: Трансжелдориздат, 1935. — С. 12.
  7. 1 2 Время мчится, как локомотив... Газета «Жизнь Луганска». Дата обращения: 12 декабря 2009. Архивировано из оригинала 24 ноября 2007 года.
  8. 1 2 А. А. Чирков. Паровозы. Общий курс конструкции и элементы теории. М.: Трансжелдориздат, 1953.
  9. Д. Бабенко, В. Маркович, А. Мочилин, Б. Мушкатин. Новый товарный паровоз. М., 1931. — С. 6.
  10. 1 2 3 4 5 6 7 8 9 10 11 12 13 14 15 16 17 18 19 20 21 22 23 24 25 26 27 28 29 30 31 32 33 34 35 36 Раков В. А. Паровозы серии ФД // Локомотивы отечественных железных дорог 1845—1955. — 1995. — С. 272—276.
  11. 1 2 3 4 5 6 7 8 9 10 11 12 Задание на проект // Паровоз Феликс Дзержинский. — С. 3—9.
  12. 1 2 3 4 Проверка выбора основных размеров паровоза // Паровоз Феликс Дзержинский. — С. 9—34.
  13. Тепловые расчёты котла и перегревателя и остроение тяговых характеристик // Паровоз Феликс Дзержинский. — С. 35—81.
  14. 1 2 3 4 Луганские локомотивы. — 1996.
  15. Струженцов И. М. Конструкции паровозов. М.: Трансжелдориздат, 1937. — С. 9.
  16. А. А. Чирков. Паровозы. Общий курс конструкции и элементы теории. М.: Трансжелдориздат, 1953. — С. 12.
  17. Сыромятников С. П. Основные данные о паровозах // Курс паровозов. — 1937. — Т. 1. — С. 15—18.
  18. 1 2 Сыромятников С. П. Рама паровоза и её части // Курс паровозов. — 1937. — Т. 2. — С. 214.
  19. Раков В. А. Опытные грузовые паровозы // Локомотивы отечественных железных дорог 1845—1955. — 1995. — С. 268—271.
  20. 1 2 3 4 5 Паровоз Феликс Дзержинский. — XI—XIII с.
  21. 1 2 3 4 Паровозы ФД-ИС. — 1935. — XI—XV с.
  22. Проектирование тендера // Паровоз Феликс Дзержинский. — С. 662—665.
  23. Свиридов Е. Я. и др. Луганские локомотивы. — 1996. — С. 5.
  24. Документальный фильм «Живые паровозы»
  25. Свиридов Е. Я. и др. Луганские локомотивы. — 1996. — С. 4.
  26. 1 2 3 4 5 Приложение 1. Опыты первого и второго циклов с паровозом ФД20-1 // Паровоз Феликс Дзержинский. — С. 789—812.
  27. 1 2 3 4 5 Испытание конусов на паровозе ФД // Паровоз Феликс Дзержинский. — С. 819—837.
  28. 1 2 3 Паровоз Феликс Дзержинский. — С. 758.
  29. А. С. Курбасов, О. К. Филиппов. Вот такие полярные мнения. Истина — в фактах // Локомотив. М.: Железнодорожное дело, 2002 (№ 1). С. 37.
  30. Эксплуатационные расходы // Паровоз Феликс Дзержинский. — С. 840.
  31. Януш Л. Б. 11. Паровозы 1-5-1 ФД // Русские паровозы за 50 лет. М.Л.: Ленинградское отделение Машгиза. Редакция литературы по машиностроению, 1950. Архивировано 21 июня 2012 года.
  32. Раков В. А. Электровозы серии ВЛ22м // Локомотивы отечественных железных дорог 1845—1955. — 1995. — С. 419.
  33. 1 2 3 Стрельцов. Паровозы-памятники. М.: Изобразительное искусство.
  34. М. И. Мельтюхов «Упущенный шанс Сталина. Советский Союз и борьба за Европу: 1939—1941» М. «Вече» 2000 г.
  35. С. А. Пашинин. Славный юбилей путевых машинных станций (5 августа 2009). Дата обращения: 8 декабря 2009. Архивировано из оригинала 20 октября 2016 года.
  36. 1 2 Путь и путевое хозяйство // История железнодорожного транспорта России и Советского Союза / Ред. Боравская Е. Н.. СПб.: Иван Фёдоров, 1997. — Т. 2. — С. 159. — ISBN 5-85952-005-0.
  37. История города. Официальный сайт города Попасная. Дата обращения: 8 декабря 2009. Архивировано из оригинала 28 мая 2010 года.
  38. Ртищево. Дата обращения: 8 декабря 2009. Архивировано 17 сентября 2009 года.
  39. 1 2 3 Лоскутов, Сергей. Южно-Уральская магистраль в годы Великой Отечественной войны (1941—1945 гг.) (pdf) (29 октября 2007). Дата обращения: 8 декабря 2009. Архивировано 20 августа 2011 года.
  40. 1 2 Мишин, Роман. История железных дорог Донской Области. Журнал «Самиздат» (2005). Дата обращения: 8 декабря 2009. Архивировано 24 мая 2013 года.
  41. 1 2 Леонид Макаров. Война. Потери паровозов : [рус.] // Локотранс. — 2012.   3. — С. 18.
  42. 1 2 Олег Курихин. «Феликс Дзержинский» // Техника — молодёжи. — 1974 (№ 6).
  43. Герой Соц. Труда Лунин Николай Александрович. Герои страны. Дата обращения: 9 декабря 2009. Архивировано 19 августа 2011 года.
  44. Постановление ГОКО 4634 от 22 ноября 1943 г.
  45. Александр Смирнов. Лебединая песня паровозов // Железнодорожное дело. — 1999 (№ 3). — С. 2—9.
  46. Раков В. А. Паровозы типа 1-5-1 ОР21 // Локомотивы отечественных железных дорог 1845—1955. — 1995. — С. 316.
  47. Раков В. А. Введение // Локомотивы отечественных железных дорог 1956—1975. М.: Транспорт, 1999. — С. 7. — ISBN 5-277-02012-8.
  48. 收藏蒸汽机车的历史 (кит.) (26 октября 2006). Дата обращения: 10 декабря 2009. Архивировано из оригинала 9 января 2009 года.
  49. QJ Class 2-10-2. Railography : Chinese Steam Profiles. Дата обращения: 10 декабря 2009. Архивировано 19 августа 2011 года.
  50. 1 2 Раков В. А. Паровозы серии Л // Локомотивы отечественных железных дорог 1845—1955. — 1995. — С. 305—307.
  51. Раков В. А. Паровозы серии ЭУ // Локомотивы отечественных железных дорог 1845—1955. — 1995. — С. 258—260.
  52. Раков В. А. Паровозы серии Эм // Локомотивы отечественных железных дорог 1845—1955. — 1995. — С. 262.
  53. Раков В. А. Паровозы серии СОк // Локомотивы отечественных железных дорог 1845—1955. — 1995. — С. 280.
  54. Раков В. А. Паровозы серии ФДк // Локомотивы отечественных железных дорог 1845—1955. — 1995. — С. 281—282.
  55. 1 2 3 Раков В. А. Паровоз типа 1-5-1 с котлом системы академика С. П. Сыромятникова // Локомотивы отечественных железных дорог 1845—1955. — 1995. — С. 314—316.
  56. 1 2 Паровоз серии ФД (часть 2). История российских паровозов. Дата обращения: 16 мая 2009. Архивировано 17 мая 2014 года.
  57. Сыромятников С. П. Рама паровоза и её части // Курс паровозов. — 1937. — Т. 2. — С. 216—219.
  58. Раков В. А. Паровозы серии СО // Локомотивы отечественных железных дорог 1845—1955. — 1995. — С. 264.
  59. Раков В. А. Паровозы серий Еф, Ес, Ек и Ел // Локомотивы отечественных железных дорог 1845—1955. — 1995. — С. 193—194.
  60. .Альбом схем паровозов и паспортов. — 1935. — С. 90—91.
  61. Сыромятников С. П. Тепловая работа котла // Курс паровозов. — 1937. — Т. 1. — С. 45.
  62. Сыромятников С. П. Пароперегреватель системы Элеско // Курс паровозов. — 1937. — Т. 1. — С. 286—288.
  63. Сыромятников С. П. Топка и кожух топки // Курс паровозов. — 1937. — Т. 1. — С. 77—78.
  64. Сыромятников С. П. Паровые цилиндры // Курс паровозов. — 1937. — Т. 2. — С. 45—51.
  65. Сыромятников С. П. Общее устройство и работа машины // Курс паровозов. — 1937. — Т. 2. — С. 4—6.
  66. Инна Панкова (31 марта 2017). «Каша из тел». Рассекречены данные о ДТП, которое произошло 60 лет назад. АиФ-Челябинск. Архивировано 30 сентября 2019. Дата обращения: 1 октября 2019.
  67. Уцелевшие паровозы на железных дорогах СНГ, Прибалтики и Монголии (Паровозы ФД20). Паровоз ИС. Дата обращения: 9 мая 2009. Архивировано 19 августа 2011 года.
  68. Уцелевшие паровозы на железных дорогах СНГ, Прибалтики и Монголии (Паровозы ФД21). Паровоз ИС. Дата обращения: 9 мая 2009. Архивировано 19 августа 2011 года.
  69. 1 2 3 Preserved Locomotives. Railways of China. Дата обращения: 16 декабря 2009. Архивировано из оригинала 15 июля 2011 года.

Литература

  • Д. Е. Богданов, М. А. Грач, Н. А. Максимов и др. Паровоз Феликс Дзержинский: Расчёты, конструирование, основные моменты постройки и испытания товарных паровозов типа 1-5-1 серии ФД / Редбюро Локомотивопроекта. М.: Государственное транспортное железнодорожное издательство, 1934 (1935). — 944 с.
  • И. А. Грач. Паровозы ФД — ИС: Устройство и уход / Редбюро Локомотивопроекта. Л.: ФЗУ им. КИМа (типография «Коминтерн»), 1935. — XV, 395 с.
  • Раков В. А. Локомотивы отечественных железных дорог 1845—1955. — 2-е, переработанное и дополненное. М.: «Транспорт», 1995. — ISBN 5-277-00821-7.
  • И. М. Струженцов. Конструкции паровозов. — Центральное управление учебными заведениями. М.: Государственное транспортное железнодорожное издательство, 1937.
  • Курс паровозов. Устройство и работа паровозов и техника их ремонта / Под ред. С. П. Сыромятникова. — Центральное управление учебными заведениями. М.: Государственное транспортное железнодорожное издательство, 1937. — Т. 1 и 2.
  • Олег Курихин. «Феликс Дзержинский» // Техника — молодёжи. — 1974 (№ 6).
  • Техническая энциклопедия / ОГИЗ РСФСР. М., 1931. — Т. 15.
  • Альбом схем паровозов и паспортов / НКПС-СССР. Центральное управление паровозного хозяйства. М.: Фабрика наглядных учебных пособий НКПС (типография «Гудок»), 1935.

Ссылки