Храм Афины Алеи
| Храм Афины Алеи | |
|---|---|
| др.-греч. Ναός της Αλέας Αθηνάς | |
| Руины храма в Тегее | |
| 37°27′20″ с. ш. 22°25′13″ в. д. | |
| Тип | Храм |
| Страна | |
| Местоположение | Алея, Триполис, Пелопоннес |
| Архитектурный стиль | архитектура Древней Греции |
| Материал | мрамор |
Храм Афины Алеи (др.-греч. Ναός της Αλέας Αθηνάς) — один из самых известных храмов древнегреческой богини Афины Алеи («защищающей, тёплой»; Ἀθηνᾶ Ἀλέα) классической эпохи[1] в древней Алее[2]. Находится на Пелопоннесе, в Аркадии, в 10 км от современного города Триполис, к юго-западу от древнего города Тегея[3], на территории современной деревни Алея в общине Триполис в периферии Пелопоннес.
Храм Алеи Афины построен в священной роще. Доступ к нему был запрещён для непосвящённых, что свидетельствует о том, что в этом месте совершались мистерии. Там было два алтаря (жертвенника), один на виду для бескровных жертвоприношений, а второй в удалении для кровавых жертвоприношений. Из этого элемента следует, что святилище относилось к храмам, обратившимся к новым религиозным обычаям[3].
История
Первый раннеантичный храм в честь Афины построил, согласно преданию, полумифический царь Алей[4]. По археологическим данным святилище существовало ещё в микенскую эпоху. Здесь поклонялись какому-то женскому божеству. Это божество затем отождествляли с Афиной. Монументальный дорический храм Афины построен в архаический период (последняя четверть VII века до н. э.)[3]. Этот архаический храм имел деревянные колонны и антаблемент[1] и сгорел во время великого пожара вместе с большинством зданий города Тегея в 395 году до н. э.[5] В 365 году до н. э. новый храм на месте сгоревшего построил паросский скульптор и архитектор Скопас[6].
Внутри храма хранилось много замечательных даров (ἀνάθημα)[1]. Лаодика с Кипра послала в дар Афине Алее пеплос[7]. На стенах храма висели оковы лакедемонских пленников. Также в храме некоторое время хранились шкура и клыки вепря, добытого в калидонской охоте, изъятые императором Августом. В древние времена храм обладал правом убежища[8].
Классический храм разрушен землетрясением в VI веке н. э.[1]
Архитектура

Классический храм построен целиком из мрамора Долианы на фундаменте из блоков конгломерата. Повторно использовался строительный материал из архаического храма[1].


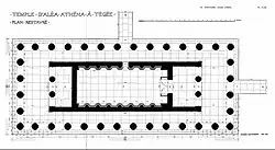
Данный храм является одним из последних, возведённых в стиле дорического ордера. Внешне представляет собой амфипростиль с сильным влиянием храма в Фигалии и Пропилеев афинского Акрополя. Целла окружена дорическим птероном (наружной колоннадой) 6 × 14 колонн (размеры колоннады 47,55 × 19,19 м). Внутри, вдоль северной и южной стен целлы, храм украшали семь коринфских полуколонн. Главный вход находился на востоке, где стилобат, а меньший вход существовал в середине северной стороны целлы. Входы имели наклонные плоскости в крепидоме. Внутри целлы находилась культовая статуя богини Афины, полностью сделанная из слоновой кости, о которой Павсаний сообщает, что она была доставлена в Рим самим Августом после его победы над Антонием. Во времена Павсания стояла ещё одна статуя богини, а по обеим сторонам стояли статуи Асклепия и Гигиеи работы Скопаса, сделанные из пентелийского мрамора. Внешний вид храма был довольно скромным, за исключением скульптурных композиций из фронтонов храма работы Скопаса[1], от которых осталось довольно много фрагментов[9]. Композиции черпают свои темы из местных легенд: на восточном фронтоне прославляется героический подвиг Аталанты, выросшей в аркадских горах, охота на калидонского вепря, а на западном фронтоне — героическая битва Телефа, сына Геракла и Авги, дочери царя Алея, против эллинов, вторгшихся в государство Мизию в Малой Азии[1]. Они проникнуты драматизмом, демонстрируют бурное движение. При их исполнении Скопас явно нарушил традиционную для греческой пластики классически строгую трактовку лица, решив наполнить его выражение жизненными эмоциями[10].
Археология
Первые пробные раскопки в районе храма провёл доктор Артур Мильххёфер, член Германского археологического института в Афинах в 1879 году. В 1885 году первые планы храма были составлены Вильгельмом Дерпфельдом. В 1900 году Французская археологическая школа в Афинах экспроприировала частные дома в районе святилища и начала свои первые планомерные раскопки под руководством Гюстава Менделя, которые вскрыли фундамент храма. Раскопки продолжил Констандинос Ромеос в 1909 году[1].
Примечания
- 1 2 3 4 5 6 7 8 Θέμος, Αθανάσιος. Ναός της Αλέας Αθηνάς (греч.). Υπουργείο Πολιτισμού και Αθλητισμού (2012). Дата обращения: 8 мая 2023. Архивировано 22 января 2021 года.
- ↑ Павсаний. Описание Эллады VIII 23, 1
- 1 2 3 Αρχαιολογικοί Χώροι (греч.). Δήμος Τρίπολης. Дата обращения: 6 мая 2023. Архивировано 6 мая 2023 года.
- ↑ Павсаний. Описание Эллады VIII 45, 4 — VIII 47, 4
- ↑ Павсаний. Описание Эллады VIII 4, 8; 45, 4
- ↑ Павсаний. Описание Эллады VIII 45, 5
- ↑ Павсаний. Описание Эллады VIII 5, 3
- ↑ Павсаний. Описание Эллады II 17, 7; III 5, 6; 7, 10; VIII 23, 1
- ↑ Тегея // Словарь античности = Lexikon der Antike / сост. Й. Ирмшер, Р. Йоне ; пер. с нем. В. И. Горбушин, Л. И. Грацианская, И. И. Ковалёва, О. Л. Левинская ; редкол.: В. И. Кузищин (отв. ред.), С. С. Аверинцев, Т. В. Васильева, М. Л. Гаспаров и др. — М.: Прогресс, 1989. — С. 567. — 704 с. — ISBN 5-01-001588-9.
- ↑ Всемирная история / АН СССР, Ин-т истории и др. ; гл. ред.: Е. М. Жуков (гл. ред.) и др.. — Москва: Госполитиздат, 1956. — Т. 2. — С. 106. — 898 с. Архивировано 8 мая 2023 года.