Архитектура донских казаков

Архитектура донских казачьих станиц — традиционные жилища донских казаков в разные периоды истории России.
История
Жилище является одним из основных элементов материальной культуры людей. Традиционное сельское жилище донских казаков содержит в себе ряд характерных черт для жилых построек в разные периоды его истории. Архитектура донских казачьих станиц отличалась от построек других населённых пунктах России. Эти отличия выработались благодаря социально-историческим и природно-климатическим условиям проживанию людей.




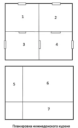
Верхний этаж: 1-спальня; 2-спальня; 3-прихожка; 4-зала.
Нижний этаж: 5-кладовая; 6-хата; 7-кухня.
С древнейших времён на Дону самым простым жилищем была полуземлянка, покрытая камышом или соломой. Степняки – кочевники проживали в юртах или в балаганах. Такие шатры – балаганы и ныне ставятся казаками на покосах или полевых станах.
На особенности традиционного казачьего жилища, которое они называют куренем, повлияла речная культура Нижнего Дона и Прикавказья. Первые поселения на Дону возникали в плавнях – речных камышовых зарослях. Для сооружения домов использовались имеющиеся в наличии материалы. Стены домов плели из двух рядов прутьев или из камыша, пространство между прутьями для сохранения тепла и прочности заполнялось землёй. Крыша покрывалась камышом, в ней делалось отверстие для выхода дыма. Жить в таких сооружениях можно было не везде, многокилометровые разливы рек требовали свайных, приподнятых над землёй построек.
На территории Верхнего Дона преобладало жилище без подполов из местного строительного материала, в основном лесоматерилов. Для строительства турлучных жилищ[1] и кровли крыш использовались чакан и камыш, саманный кирпич из глинистого грунта с добавлением соломы или других добавок, высушенного на открытом воздухе использовался для сооружения стен. Характерной особенностью построек северных округов было использование наземной системы отопления. Кроме русской печи под кроватью, у стены, размещали небольшую печурку – подземку.
Образцы казачьей архитектуры можно увидеть в Раздорском этнографическом музее-заповеднике, Старочеркасском историко-архитектурном музее-заповеднике, Иловлинском музее казачьего быта (Иловля).
Типы жилых построек на Верхнем Дону
В районе Верхнего Дона, севернее реки Северский Донец в Ростовской области распространены постройки:
- Дом пятистенок распространился в 60–70-е годы XIX века. Особенностью пятистенка является наличие капитальной стены, внутри четырёх основных стен. Пятая стена которая разделяла жилое пространство дома на хату и горницу. К основному срубу пристраивали холодный чулан или сени, комнату для хозяйственных нужд. Строили такие дома из леса местных пород.
- Круглый дом в плане имел квадратную форму с шестью капитальными стенами и высоким фундаментом. Жилая площадь была в верхней части дома, в нижней устраивается погреб или кладовая для хранения продуктов. Данный тип появился при развитии пятистенка, в котором к боковой стене пристраивался чулан с комнаткой и закрытый досками наружный коридор – галдарея. В круглом доме комнаты – хата, горница, спальня и чулан соединялись между собой по кругу. Для строительства круглых домов было необходимо большое количество древесины, поэтому такой тип постройки могли себе позволить только семьи с достатком.
- Дом с тёплым коридором в плане имел тот же крестовик, но к двум взаимно пересекающимся стенам добавлялась третья. Такой сруб делился не на четыре, а на пять или шесть частей.
- В доме с тёплым коридором было около шести комнат: три горницы, комнатка, спальня, хата. Они соединялись двумя коридорами, один из которых называется холодный, а другой – тёплый.
- Протяжный дом, в отличие от круглого дома, имел вытянутую прямоугольную форму. Внутренняя планировка протяжных построек Верхнего Дона в середине XIX века не отличалась от среднерусской. Тёплая изба и горница соединялись между собой сенями и отапливались русской печью.
- В связевом доме сени были превращены в среднюю комнату, у входа в виде длинного коридора пристраивалась галдарея. Коридор выходил на фасад широким крыльцом.
- Верхнедонской четырехкомнатный курень имел высокий фундамент с погребом или кладовой. Жилая часть дома находилась в верхней части. В жилой части из горницы выделялась спальня. Помещения назывались: прихожка, стряпка, горница и спальня. Крыша верхнедонских куреней строилась четырёхскатной. Крыли накрывались камышом или чаканом, в настоящее время — шифером или кровельным железом. Крыша была отличительным элементом казачьих жилищ. Пучки сухого камыша укладывали и закрепляли на крыше в несколько рядов. Чтобы крыша не давала течь, её верхняя часть у трубы плотно наполнялась соломой и мелом. Чакан и камыш зимой сохраняли тепло в доме, а летом – прохладу.
- Флигель — боковая пристройка к главному зданию или дом во дворе большого здания. В усадьбе богатого казака – это постройка с кухней. Для казака среднего достатка флигель служил жилым домом. Внутренняя стена делила флигель на две комнаты – сени и избу. Сени строились вдоль всей продольной стены строения. Двухскатная крыша покрывалась камышом, жестью, позднее шифером. Стены флигелей строились из дерева или самана.
- Хата с чуланом представляла собой двухкомнатное строение. Внешних стен было четыре, внутренняя пятая делила строение на комнату (хату) и сени (чулан). Хаты строились из самана. Источником тепла были русские печи, печка-подземка, которая часто размещалась под кроватью. В строительстве первого этажа использовали дикий камень и саман, древо применяли для второго жилого этажа.
Типы жилищ на Нижнем Дону


На Нижнем Дону встречаются следующие типы жилищ:
- Нижнедонской курень, отличается от верхнедонского жилым первым этажом. В двухэтажном здании куреня первый этаж был кирпичный (ранее саманный), второй этаж строился деревянным. В плане это квадратный дом с четырёхскатной крышей. Особенностью такого дома являются галдарея и балясник (ограждение из деревянных балясин). Весь дом опоясывался балкончиком, который казаки называют балясником. Балясник служил для удобства открытия и закрытия оконных ставен. Окна украшались резными наличниками. Лёгкость установки перегородок в нижнедонском курене позволяла изменять планировку дома. Число комнат и их назначение могли быть разными: горница, зала, спальня, хата, кухня, стряпка, прихожка и т. д.
- Флигель с нежилым первым этажом на Нижнем Дону представлял собой здание квадратной формы на высоком каменном подклете – омшаннике. В таком доме на первом этаже была холодная – нежилая комната без окон, с небольшими отверстиями в стенах. Казаки хранили в ней продукты. Высокий фундамент, подклет, защищал дом от залива при разливах рек.
- На втором
этаже было четыре жилых комнаты с лёгкими перегородками. Планировка и название комнат соответствовало куреням с жилыми низами.
- Круглый шестистенный дом с круговым сообщением в плане имел квадратную форму. Это был двухэтажный дом с двумя пересекающимися стенами, рубленными со всем срубом. Они разделяли каждый этаж на четыре комнаты. Комнаты в круглом доме имели круговое сообщение. Это подчёркивало название – круглый дом.
- Хата на Нижнем Дону представляет собой однокомнатную постройку из самана под соломенной крышей. Часто хата была малым домом при курене, летом она служила кухней. Возникновение особых двухэтажных построек на территории Нижнего Дона обусловлено тем, что при разливах рек, когда первый этаж затоплялся, жильцы перебирались на второй этаж и жили там до спада воды. С начала XIX века и до середины казаки, имеющие двухэтажные дома с низами, считались зажиточными.

- Землянки и полуземлянки представляли собой ранний тип строений в степных зонах, которые начали заселять во второй половине XIX века выходцы малоземельных станиц. В военные годы XX века население по всей бывшей Области войска Донского стало использовать земляные жилища вместо разрушенных капитальных. В землянках стены были полностью утоплены в земляном грунте. Сверху они перекрывались деревянными балками – стра́пилами, на страпила клался настил из дёрна, в котором вырезались окна. Полуземлянки утапливались в землю до половины строения. Верхняя часть их стен достраивалась дерновыми кирпичами. При строительстве полуземлянок выкапывался котлован, в котором устанавливались вертикальные столбы с продольными пазами. Между столбами в пазах закреплялись короткие деревянные доски. Полуземлянки лучше сохраняли тепло, чем землянки, для их отопления требовалось меньше дров, чем для наземных зданий.
На Верхнем и Нижнем Дону одинаковые названия используются для обозначения разных типов жилья. Так, на территории Верхнего Дона курень – это одноэтажное здание на высоком фундаменте, появившееся при развитии пятистенка, комнаты в них разделялись рублеными капитальными стенами. А на территории Нижнего Дона курень – это двух этажная постройка с жилым первым и вторым этажом, комнаты в них разделялись лёгкими перегородками.
Примечания
- ↑ Турлучные жилища. Дата обращения: 6 марта 2017. Архивировано из оригинала 7 марта 2017 года.
Литература
- Сухоруков В. Д. Историческое описание Земли Войска Донского. Новочеркасск: Частная Донская Типография, 1903. 463 с.
- Пьявченко Е. В. Архитектура и градостроительство Подонья до XVIII в.: учебное пособие. Ростов н/Д: РАИ, 1993. 114 с.
- Лазарев А. Г. Традиционное народное жилище донских казаков. Казачий курень. Ростов н/Д: ООО ИЦ “Булат”, 1998. 224 с.
- Рыблова М. А. Традиционные поселения и жилища донских казаков. Волгоград: Изд-во ВГУ, 2002. 242 с.